Die Meldung in Bildern
Schreibtisch statt Gummischlauch
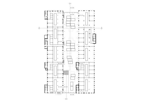
Kresings planen Fabrikumbau in Hamburg
Bild 10/17
Grundriss 1. Obergeschoss
Bild: KRESINGS