Die Meldung in Bildern
Durchs Erdgeschoss skaten
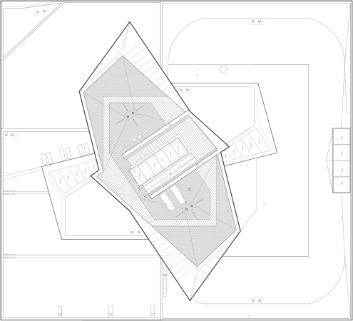
Kreativzentrum in Portland von Skylab Architecture
Bild 18/27
Dachlevel
Bild: Skylab Architecture