Kreativzentrum in Paris von Farid Azib Architectes
Bild 25/26
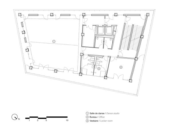
Grundriss 2. Obergeschoss
Bild: Randja - Farid Azib Architectes