Kreativzentrum im moldawischen Chisinau von Maxim Calujac
Bild 23/28
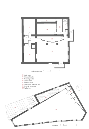
1. Obergeschoss
Bild: Calujac Architecture