Die Meldung in Bildern
Raum für psychische Genesung
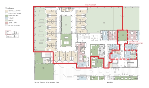
Krankenhauserweiterung in London von C.F. Møller
Bild 45/57
forensische Abteilung
Bild: C.F. Møller