Die Meldung in Bildern
Klinisch rein
Krankenhaus in Girona von PMMT Arquitectura
Bild 17/23
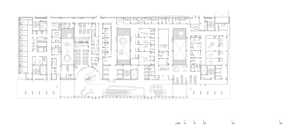
Grundriss Erdgeschoss
Bild: PMMT Arquitectura