Die Meldung in Bildern
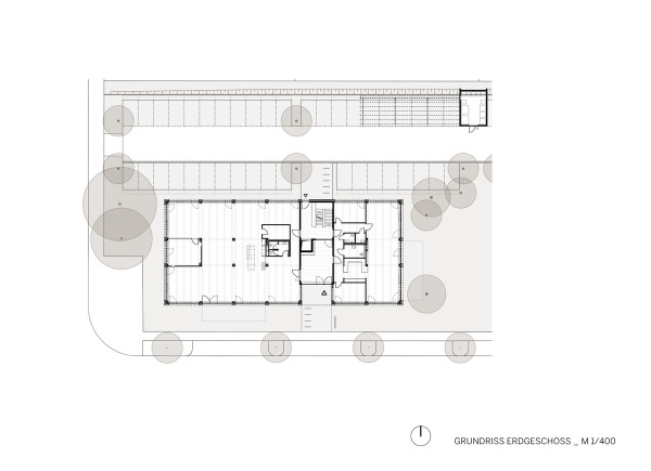
Holz für die Gewerbebaugruppe
Kottermair Rebholz in Murnau
Bild 15/18
Bild: Kottermair Rebholz Architekten