Die Meldung in Bildern
Verneigung oder Hülle
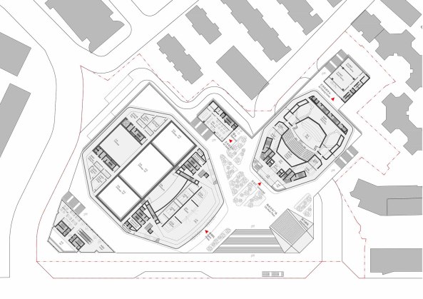
Konzerthalle von gmp in China
Bild 9/13
Bild: gmp