Die Meldung in Bildern
Außen Christo, innen Musik
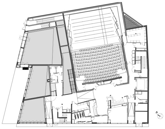
Konservatorium von Basalt Architecture in Paris
Bild 27/31
EG