Japan, Hous for seven people, mnm Mio Tsuneyama, Baugruppe, Stahlbau, Leben und Arbeiten, Holzkonstruktion, Stahlbau, Sichtbeton, Sperrholz, Madeleine Kessler

Bild 25/26

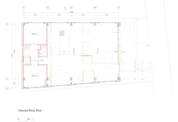
Grundriss EG (in Gelb die ursprüngliche Raumaufteilung)

Bild: mnm Mio Tsuneyama