Die Meldung in Bildern
Vom Beet auf den Tisch
Kochschule in London von Surman Weston
Bild 17/23
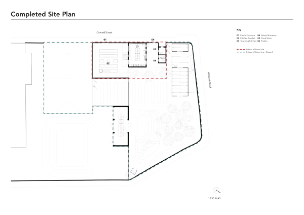
Lageplan
Bild: Surman Weston