Die Meldung in Bildern
Wohnen und arbeiten im Zollhafen
Klinkerensemble von Meck Architekten in Mainz
Bild 9/17
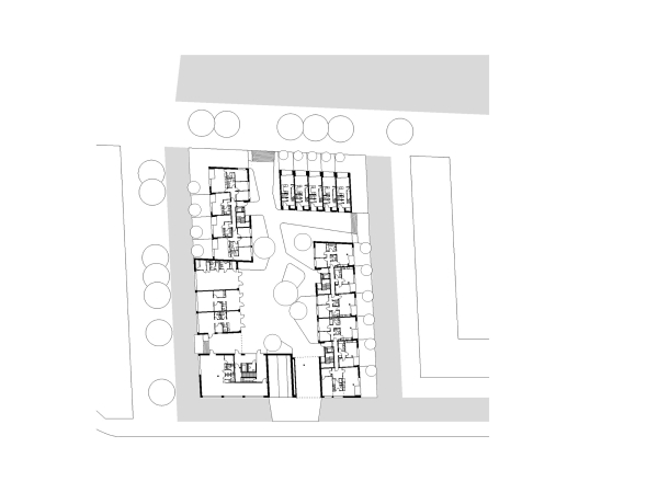
Grundriss Erdgeschoss
Bild: meck architekten