Kita von Djuric Tardio Architectes in Paris
Bild 24/26
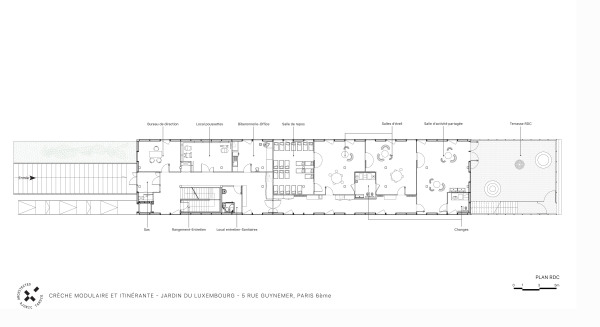
Grundriss: Erdgeschoss
Bild: Djuric Tardio Architectes