Die Meldung in Bildern
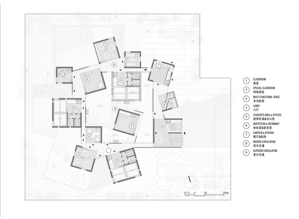
Mini-Dorf für Kinder
Kita in der ostchinesischen Provinz Jiangsu von Crossboundaries
Bild 18/22
Bild: Crossboundaries