Die Meldung in Bildern
Eine feste Burg in Köln
Kirchenzentrum von harris + kurrle
Bild 12/16
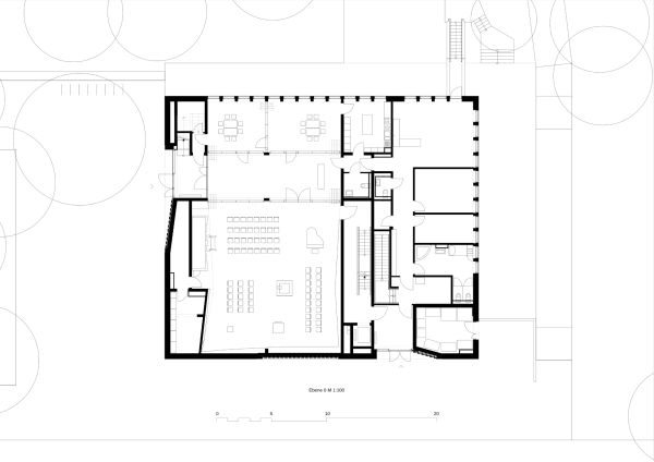
Grundriss EG
Bild: harris + kurrle