Die Meldung in Bildern
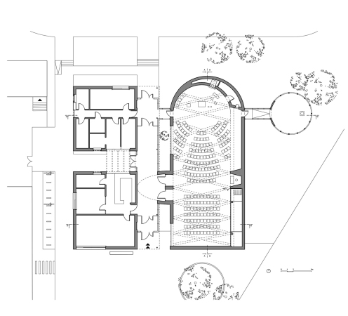
Elliptische Krone
Kirche in Frankfurt am Main von Königs Architekten
Bild 13/20
Grundriss
Bild: Königs Architekten