Die Meldung in Bildern
Regenbogen am Betonhimmel
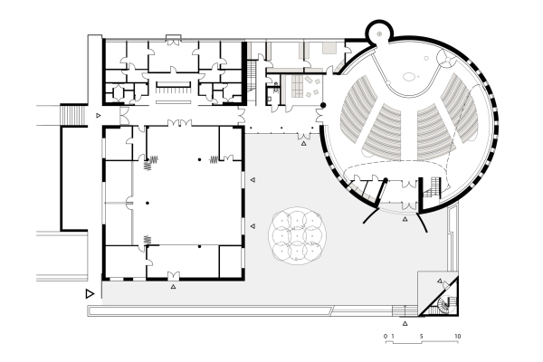
Kirche in Brünn von Atelier Stepan
Bild 29/38
Erdgeschoss
Bild: Atelier Štěpán