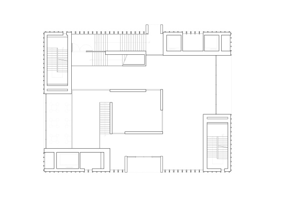
Kirche bei Taipeh von behet bondzio lin Architekten
Bild 46/58
Grundriss 1. OG, Mezzaningeschoss
Bild: behet bondzio lin architekten