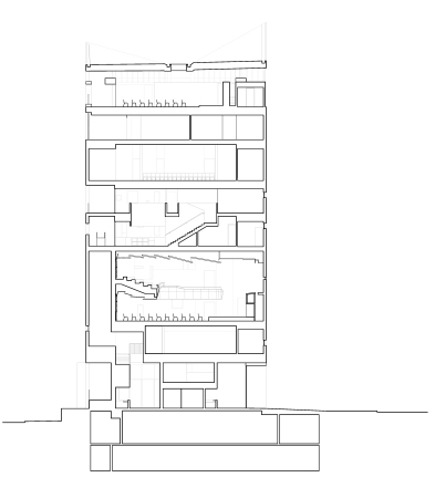
Kirche bei Taipeh von behet bondzio lin Architekten
Bild 44/58
Schnitt
Bild: behet bondzio lin architekten