Die Meldung in Bildern
Hölzern heilen, rundum forschen
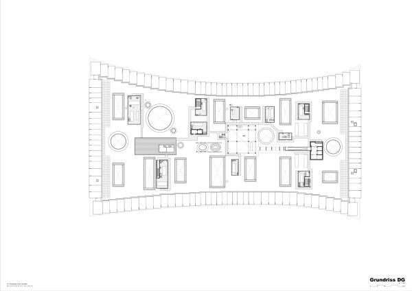
Kinderkrankenhaus von Herzog & de Meuron in Zürich
Bild 32/44
Bild: Herzog & de Meuron