Die Meldung in Bildern
Die Sterne sehen
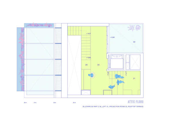
Kinderhilfezentrum in Madrid von elii
Bild 44/53
Bild: elii