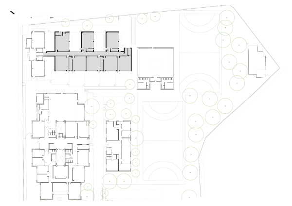
Kindergarten von Palenzvela. Taller de Arquitectura in Almeria
Bild 22/25
Lage mit Bestand
Bild: Palenzvela Architecture Studio