Die Meldung in Bildern
Raum zum Rennen und Toben
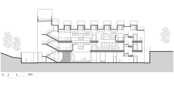
Kindergarten in Sichuan von Atelier Y
Bild 20/25
Längsschnitt
Bild: Atelier Y