Die Meldung in Bildern
Raum zum Rennen und Toben
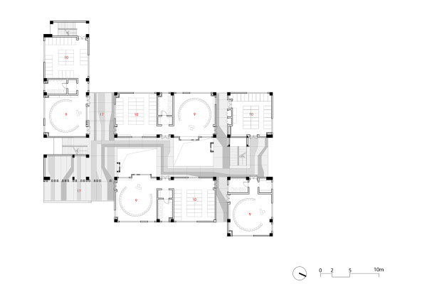
Kindergarten in Sichuan von Atelier Y
Bild 18/25
2. Obergeschoss
Bild: Atelier Y