Die Meldung in Bildern
Wie bunte Schulkreide
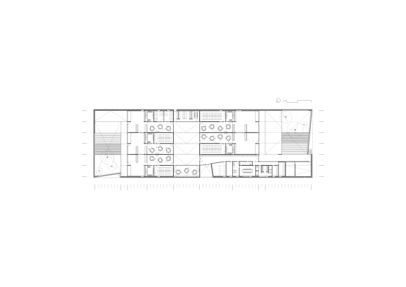
Kindergarten in Pamplona
Bild 16/20