Die Meldung in Bildern
Lamellen aus Beton rosé
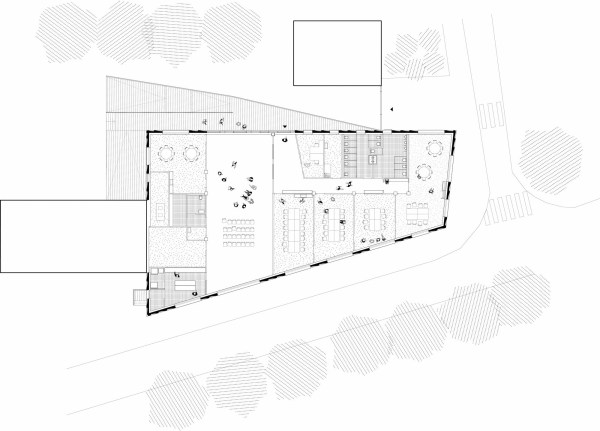
Kinder-Freizeitzentrum bei Paris von Graal architecture
Bild 14/21
Grundriss