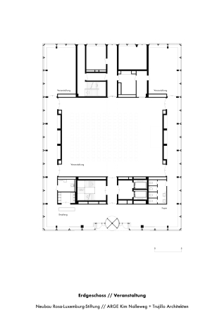
Die Meldung in Bildern
Neubau für die Rosa-Luxemburg-Stiftung
Kim Nalleweg und Trujillo Moya in Berlin
Bild 14/18
Erdgeschoss