Die Meldung in Bildern
Kontakt im Catio
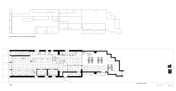
Katzencafé in Buffalo von Davidson Rafailidis
Bild 23/36
Bild: Davidson Rafailidis