Die Meldung in Bildern
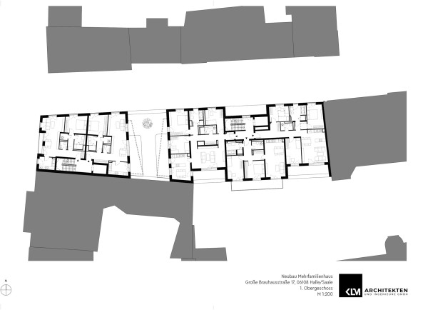
Gediegen wohnen am Riesenhaus
KLM-Architekten in Halle an der Saale
Bild 13/17
Bild: KLM-Architekten