Justizzentrum, Gelsenkirchen, harris + kurrle, competition, 1. preis, first prize, Wettbewerb, win, backstein, bricks, brick work, 2016, 2015, Deutschland, Germany, Gericht, Amtsgericht, Westdeutschland, west germany, VOF-Verfahren, Sozialgericht, Block, kantig, Bochumer Straße 6, Joel Harris, Volker Kurrle, Wenzel + Wenzel Freie Architekten, Jetter Landschaftsarchitekten, Roland Halbe

Bild 8/9

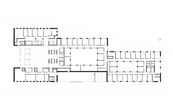
Grundriss Erdgeschoss

Bild: harris + kurrle