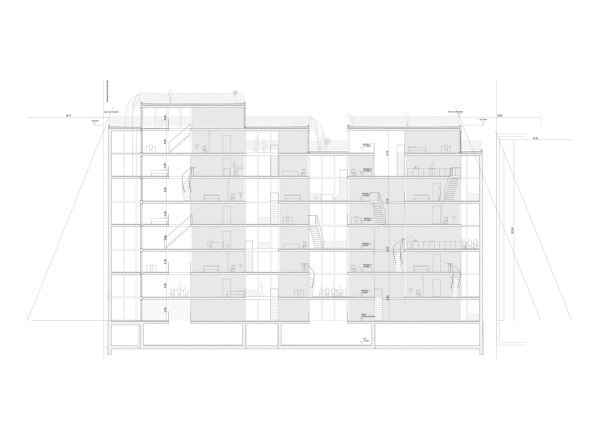
Längsschnitt durch das Baugruppenhaus von June14

Bild 8/30

Längsschnitt durch das Baugruppenhaus von June14

Bild: June14