June14 und Bolles+Wilson bauen in Berlin-Schöneberg
Bild 12/30
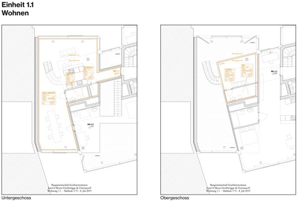
Beispielgrundrisse für Wohneinheit 1.1
Bild: June14