Die Meldung in Bildern
Betonoase zwischen Platten
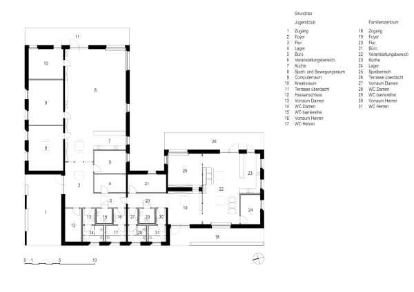
Jugendclub in Berlin von Gruber + Popp
Bild 14/16
Bild: Gruber + Popp