Bild 25/43
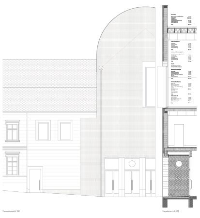
2. Preis: ARGE Büro Wortmann Gork Architekt:innen und NOTO Basista Becker Jansen (Berlin), Fassadenansicht und -schnitt
Bild: ARGE Büro Wortmann Gork Architekt:innen und NOTO Basista Becker Jansen
Bild 25/43
2. Preis: ARGE Büro Wortmann Gork Architekt:innen und NOTO Basista Becker Jansen (Berlin), Fassadenansicht und -schnitt
Bild: ARGE Büro Wortmann Gork Architekt:innen und NOTO Basista Becker Jansen