Jan Wiese Architekten gewinnen Wettbewerb in Schwerin
Bild 11/43
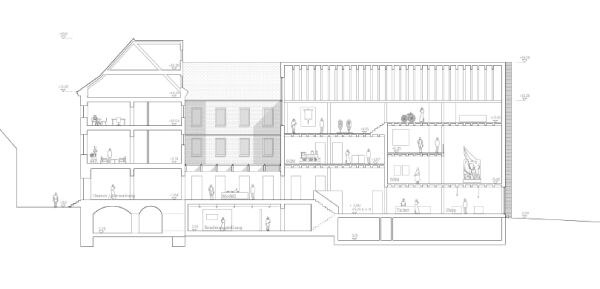
1. Preis: Jan Wiese Architekten, Längsschnitt
Bild: Jan Wiese Architekten