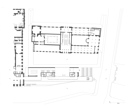
Grundriss Ebene 2, Hauptgeschoss (Originalmaßstab 1:500)

Bild 30/33

Grundriss Ebene 2, Hauptgeschoss (Originalmaßstab 1:500)

Bild: © David Chipperfield Architects