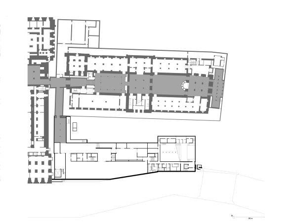
Grundriss Ebene 0 (Originalmaßstab 1:500)

Bild 28/33

Grundriss Ebene 0 (Originalmaßstab 1:500)

Bild: © David Chipperfield Architects