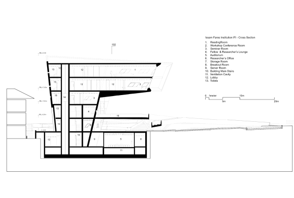
Issam Fares Institute for Public Policy and International Affairs, American University of Beirut, Zaha Hadid, Sichtbeton

Bild 36/37