Ismaili Center in Houston von Farshid Moussavi Architecture
Bild 30/36
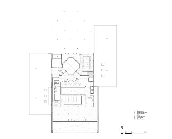
Grundriss 4. Obergeschoss
Bild: FMA