Internatserweiterung von LH Architekten in Güby
Bild 17/24
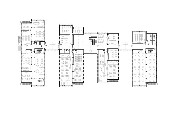
Grundriss Erdgeschoss (Schulgebäude)
Bild: LH Architekten