Die Meldung in Bildern
Kobaltblau gefliest
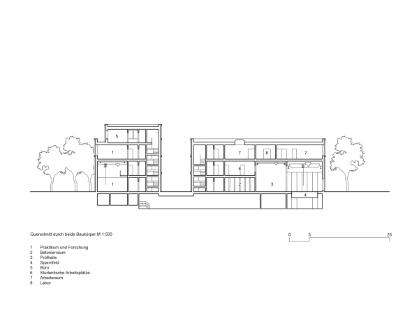
Institutsgebäude von Schulz und Schulz in Gießen
Bild 26/29
Querschnitt
Bild: Schulz und Schulz