Bild 21/35
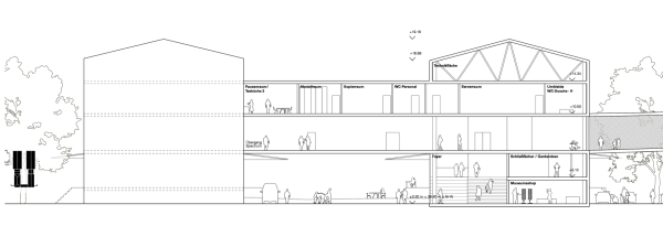
3. Preis: :mlzd (Berlin) mit uniola Landschaftsarchitektur Stadtplanung (Berlin) – Querschnitt
Bild: :mlzd mit uniola Landschaftsarchitektur Stadtplanung
Bild 21/35
3. Preis: :mlzd (Berlin) mit uniola Landschaftsarchitektur Stadtplanung (Berlin) – Querschnitt
Bild: :mlzd mit uniola Landschaftsarchitektur Stadtplanung