Die Meldung in Bildern
Im Stapel werken
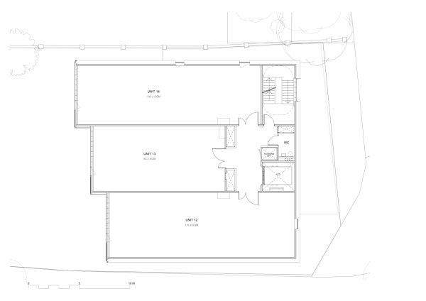
Industriegebäude in London von dRMM
Bild 22/26
Grundriss 4. Obergeschoss
Bild: dRMM