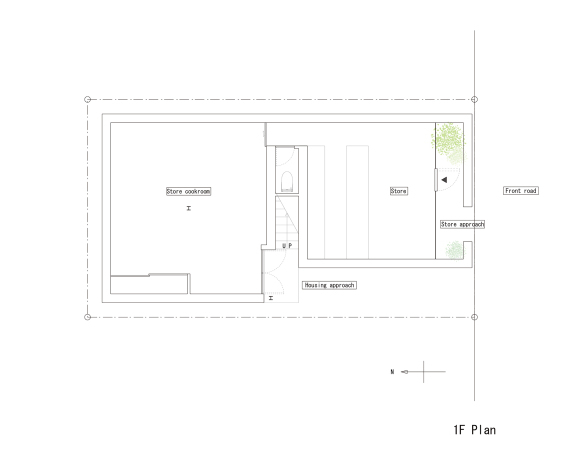
Yuko Nagayama, Yohei Kawashima, Haus in Japan, Hybrid, Hybrid aus Wohnhaus und Konditorei bei Tokio, Yachiyo, Tokio, Wohnen in Japan, Wohnen in Tokio

Bild 12/15