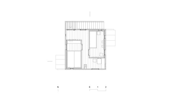
Hüttenerweiterung von Capaul & Blumenthal
Bild 12/20
Grundriss Ebene 3
Bild: Capaul & Blumenthal architects