Die Meldung in Bildern
Schlaf gut bei Marcel Breuer
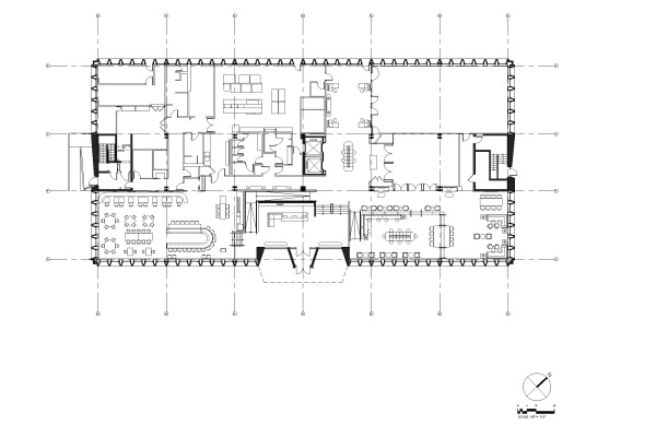
Hotelumbau von Becker + Becker in New Haven
Bild 32/36
Grundriss Erdgeschoss
Bild: Becker+Becker