Die Meldung in Bildern
Wein und Gewölbe
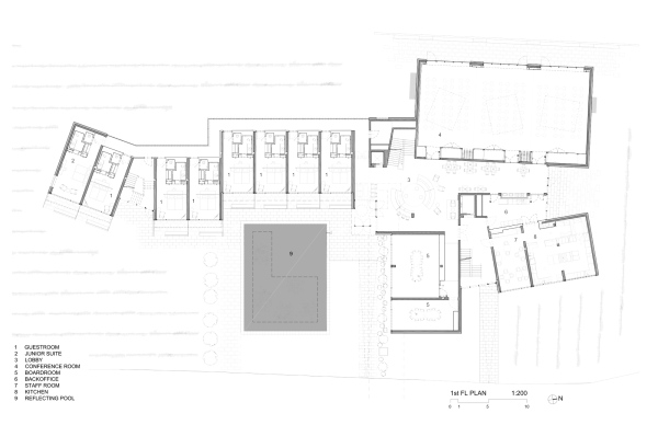
Hotelerweiterung von Steven Holl Architects in Österreich
Bild 19/31
Bild: Steven Holl Architects