Die Meldung in Bildern
Garten oder Gebäude?
Hotel von WOHA in Singapur eröffnet
Bild 28/31
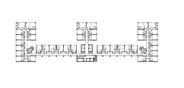
Grundriss 7. Geschoss
Bild: WOHA Architects