Die Meldung in Bildern
Garten oder Gebäude?
Hotel von WOHA in Singapur eröffnet
Bild 25/31
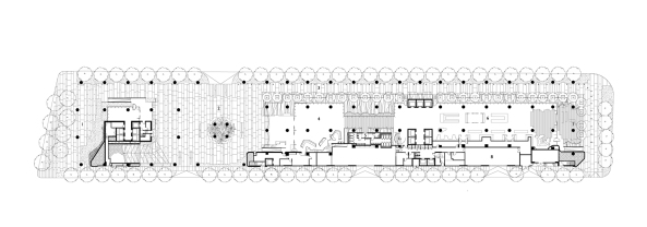
Grundriss 1. Geschoss
Bild: WOHA Architects