Le Meridien Zhengzhou, Hotel, Hochhaus, Neri&Hu Design and Research Office, Central China, Glasfassade, Rahmenwerk, Marmor, South Architectural Design Institute, Lyndon Neri & Rossana Hu, Shanghai, Bauboom, Luxushitel, Rahmenwerk, Christine Neri, 1188 Zhongzhou Avenue, Normalgeschoss, Pedro Pegenaute

Bild 27/33

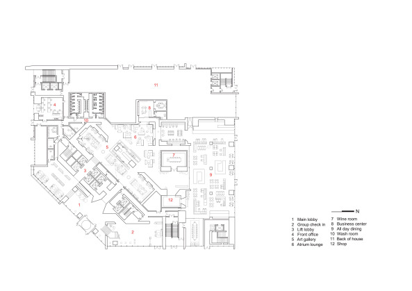
Grundriss Erdgeschoss